Parduodamos naktinio klubo patalpos A. Goštauto g., Naujamiestyje, Vilniuje, 62.47 kv.m ploto

  • 149,000EUR
A. Goštauto g. 12, Naujamiestis, Vilniaus m., Naujamiestis
Pardavimas
Parduodamos naktinio klubo patalpos A. Goštauto g., Naujamiestyje, Vilniuje, 62.47 kv.m ploto
A. Goštauto g. 12, Naujamiestis, Vilniaus m., Naujamiestis
  • 149,000EUR

Pagrindinė informacija

  • Objekto ID: 38748
  • Kaina: 149,000EUR
  • Objekto plotas: 62.47 m²
  • Kambariai: 6
  • Statybos metai: 1965
  • Objekto tipas: Komercinis NT
  • Objekto statusas: Pardavimas
  • Aukštų skaičius: 4
  • Pastato tipas: Mūrinis
  • Įrengimas: Visa apdaila
  • Šildymas: Centrinis
  • Langų rūšis: Plastikiniai

Aprašymas

PARDUODAMAS VEIKIANTIS PRIVAČIŲ VAKARĖLIŲ NAKTINIS KLUBAS !!! ESANT POREIKIUI PATALPOS PRITAIKOMOS IR KITAI VEIKLAI.
PRIVALUMAI
• Patalpos paruoštos pramogų verslui;
• Labiausia tinkamos naktinio klubo veiklai;
• Nesunkiai pritaikoma kitoms veikloms;
• Nelimituotas naktinės veiklos laikas (aplink nėra gyvenamųjų patalpų);
• Vieta patogiai pasiekiama visomis transporto priemonėmis ir pėstute;
• Racionalus patalpų planavimas;
• Dizainerio kurtas interjeras;
• Atskiras įėjimas;
• Puiki vakarėlių atmosfera – PATIKRINTA;

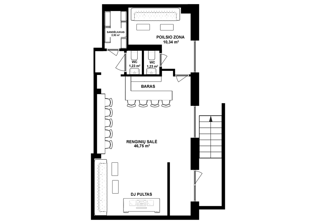
PATALPŲ DUOMENYS
• Plotas – 62,47;
• Aukštas – cokolinis;
• Patalpų skaičius – 5;
• Pagrindinė patalpa – 1 (baras, pramogų salė, DJ pultas);
• Poilsio (relax) zona – 1;
• San. mazgų skaičius – 2;
• Prieškambaris/rūbinė – 1;
• Sandėliukas – 1;
• Terasa – šiltu metų lauku naudojamas platus pėsčiųjų takas;

APDAILOS MEDŽIAGOS
• Grindys – epoksidiniais dažais dažytas betonas;
• Sienos – mūras, dažytos;
• Lubos – betonas;
• Langai – plastikiniai;
• Lauko durys – plastikinės, stiklintos;

NAMO DUOMENYS
• Adresas – Goštauto g. 12;
• Namo tipas – mūrinis;
• Statybos metai – 1965;
• Aukštų skaičius – 4;

INŽINERINĖS SISTEMOS
• Šildymo tipas – centrinis;
• Išlaidos šildymui per metus – vid. 70 Eur/mėn.;
• Vėdinimo sistema – mechaninis oro ištraukimas;
• Kondicionavimas – oro kondicionierius;
• Vandentiekis – miesto;
• Vandens pašildymas – boileris ;
• Kanalizacija – miesto;
• Elektra – 11 kW;
• Apsaugos ir priešgaisrinė signalizacija – yra;
• Skaitmeninė televizija – ;
• Internetas – mobilus
• Apsauginės žaliuzės;
• Baro baldai, įranga (ledo generatorius, šaldytuvai);
• Garso (JBL Professional), DJ (Pioneer) bei šviesos įrangą galima įsigyti už papildomus 3.000 Eur;

VIETA IR INFRASTRUKTŪRA
• Rajonas – Naujamiestis;

KITA SVARBI INFORMACIJA
• Kaimynystė – administracinės patalpos;
• Paskirtis – negyvenama patalpa, kultūros.

Kilus bet kokiems NT klausimams Lietuvoje ar Ispanijoje, maloniai prašau susisiekti žemiau nurodytais kontaktais.

Darius Ringaitis
+370 611 11 588
darius.ringaitis@reaction.lt

  • Adresas A. Goštauto g. 12, Naujamiestis
  • Miestas Vilniaus m.
  • Rajonas Naujamiestis
  • Šalis Lietuva

Kontaktinė informacija

Brokerio skelbimai
Darius Ringaitis

Teirautis dėl šio objekto

Panašūs skelbimai

Palyginti sąrašus

Palyginkite
Darius Ringaitis
  • Darius Ringaitis